|
NAUJIENOS
|
LANGAI "PASYVIEMS" NAMAMS - NAUJIENA !
Energiją taupantiems "pasyviems" namams pradėjome gaminti langus su ypatingai mažu šilumos perdavimo koeficientu
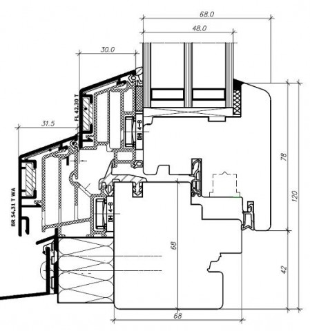
Tai ilgaamžis medinis langas iš išorės uždengtas Gutmann Mira Therm 08 aliumininiais profiliais.
Stiklinimui naudojami stiklo paketai su naujos kartos selektyviniais stiklais SGG Planitherm One.
Stiklo paketo storis 48 mm.
Ypatingai sandarūs langai su keturiais sandarinimo kontūrais.
Energiją taupantiems "pasyviems" namams pradėjome gaminti langus su ypatingai mažu šilumos perdavimo koeficientu
|
|
|
|
0,5 |
0,729 |
Tai ilgaamžis medinis langas iš išorės uždengtas Gutmann Mira Therm 08 aliumininiais profiliais.
Stiklinimui naudojami stiklo paketai su naujos kartos selektyviniais stiklais SGG Planitherm One.
Stiklo paketo storis 48 mm.
Ypatingai sandarūs langai su keturiais sandarinimo kontūrais.
MEDŽIO FASADAI - NAUJIENA !
Pristatome naujausią Vokietijos bendrovės Hermann GUTMANN Werke AG produktą medžio fasadą. Medis išvidaus ir iš išorės - patenkins reikliausių klijentų poreikius.
BALKONŲ STIKLINIMAS - NAUJIENA !
Balkonų, lodžijų, terasų stiklinimui pradėjome gaminti aliuminio - stiklo konstrukcijų sistemą, kuri tinka tiek jau pastatytuose daugiabučiuose, tiek naujai statomuose namuose. Spalvos standartinės: balta ir pilka.
Balkonai iš rėminių aliuminio stiklo konstrukcijų gaminami iš anoduoto aliuminio profilio.
- Aliuminis nepūva, nebrinksta, nesikraipo, neskeldėja nuo šalčio, atsparus korozijai.
- Aliuminis savyje suvienija mažą svorį ir didelį tvirtumą.
- Kiekvienas langas lengvai išimamas, išvalomas ir vėl įstatomas.
- Patogios ergonomiškos rankenėlės.
Įstiklinę balkoną, apsaugosime jį nuo drėgmės, dulkių, vėjo ir triukšmo.
Siauri aliuminio profiliai neužstoja šviesos, o stumdymo sistema leidžia atidaryti net 75% užstiklintos dalies ploto. Ši sistema leidžia atidaryti net iki 6 stumdomų sekcijų. Langus galite sustumti vieną už kitos ir balkonas taps vėl atviras. Uždarius langus, sekcijų profiliai glaudžiai susijungia vienas su kitu. Dvigubi sandarinimo šepetėliai saugo nuo drėgmės, vėjo ir dulkių. Specialūs užraktai neleidžia atidaryti ar išimti langus iš lauko pusės.
Balkonų, lodžijų, terasų stiklinimui pradėjome gaminti aliuminio - stiklo konstrukcijų sistemą, kuri tinka tiek jau pastatytuose daugiabučiuose, tiek naujai statomuose namuose. Spalvos standartinės: balta ir pilka.
Balkonai iš rėminių aliuminio stiklo konstrukcijų gaminami iš anoduoto aliuminio profilio.
- Aliuminis nepūva, nebrinksta, nesikraipo, neskeldėja nuo šalčio, atsparus korozijai.
- Aliuminis savyje suvienija mažą svorį ir didelį tvirtumą.
- Kiekvienas langas lengvai išimamas, išvalomas ir vėl įstatomas.
- Patogios ergonomiškos rankenėlės.
Įstiklinę balkoną, apsaugosime jį nuo drėgmės, dulkių, vėjo ir triukšmo.
Siauri aliuminio profiliai neužstoja šviesos, o stumdymo sistema leidžia atidaryti net 75% užstiklintos dalies ploto. Ši sistema leidžia atidaryti net iki 6 stumdomų sekcijų. Langus galite sustumti vieną už kitos ir balkonas taps vėl atviras. Uždarius langus, sekcijų profiliai glaudžiai susijungia vienas su kitu. Dvigubi sandarinimo šepetėliai saugo nuo drėgmės, vėjo ir dulkių. Specialūs užraktai neleidžia atidaryti ar išimti langus iš lauko pusės.
Aliuminio konstrukcijos ir stiklas - tai neribotos galimybės architektūrinių sprendimų išpildymui.
Aliuminio konstrukcijos su medžio imitacija - NAUJIENA !
YAWAL aliuminio profilių sistemoje naujovė.
Šiuo metu galime pasiūlyti fasadines konstrukcijas, aliuminio langus bei duris su medžio
struktūros imitacija, 30- ies atspalvių gama.
Pateikiame keletą atspalvių ir tekstūrų pavyzdžių:
